グリーンセンター大集会堂改修基本設計を、ますいいリビングカンパニー、建築家佐藤研吾氏と構造家名和研二氏とともに行っています。
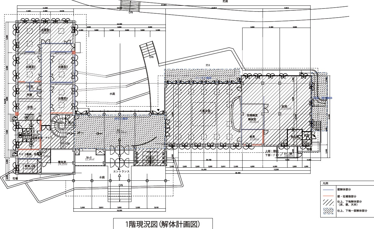
1F平面計画
■フードホール
・さまざまな飲食形態が客席を共有して営業する、フードホール形式の飲食エリアを計画します。
・客席エリアは、通常営業に加えて、レストランウェディング、大規模なパーティ・イベント、講演会やセミナーなど、さまざまなニーズに対応可能な、座席・レイアウトを変更しやすい計画とします。
・南ゲート前広場から坂道を登って訪れる利用者の目に止まりやすい位置に、テイクアウト主体のカフェを想定した厨房・店舗エリアを計画します。
・建物の南側には、既存建物と隣接する形でテラス席や通路のための屋根付きの半屋外スペースを別棟増築します。
■カフェ・テラス席
多目的スペースは、イベントや展示会などを行い、ギャラリーとしてアート作品を展示することもできるような、広々として開放的なスペース(文化エリア)を計画します。また市民によるワークショップなどが可能なコミュニティラウンジを計画します。
■文化エリア・コミュニティラウンジ
中央のラウンジ部分は既存の意匠をできるだけ残し、かつての大集会堂の雰囲気が感じられる空間とすると共に、イベント開催時には多目的なスペースとして活用ができる場とします
■ラウンジ
・乳幼児向けの屋内遊び場を備えたこども休憩室を計画します。
・複数の授乳ブース、おむつ替え台(乳幼児用)、授乳用給湯器、ベビースケールなどを配置し、いつでも気軽に利用できるベビールームを計画します。
■こども休憩室・ベビールーム
飲食エリア(ラウンジ)、文化エリアそれぞれに、男女それぞれ複数台のトイレ、1台のみんなのトイレを計画します。
■トイレ
緊急時、災害時に避難場所となるために、食料・物品を備蓄する防災用倉庫を計画します。北駐車場からの搬入が容易な、建物西側に防災用倉庫を計画します。
2F平面計画
・2階奥に位置する貴賓室を保存する形とし、貴賓室の雰囲気の延長とする形で、落ち着いた鑑賞体験が可能なギャラリーを複数室計画します。
■貴賓室
貴賓室は、建築当初の意匠を残すためにも、工事箇所を劣化部分の修復程度に限り、現状を維持保存する計画とします。
■ギャラリー
・複数室からなるギャラリーは、既存の内装意匠を活かしつつ、展示される美術作品を鑑賞しやすい形での照明設備や展示壁を計画します。
・廊下や下階にいる人々からの視認性を高め、また室内の開放感を高めるために廊下に面する壁に大きなガラス開口部を設ける計画とします。
■廊下
既存の床壁を除去し、1階の多目的スペースからの吹き抜け空間を計画し、1階と2階の一体感を高める計画とします。また、吹き抜け空間を通じて、建物中央部に位置する2階廊下の開放感を高め、十分な明るさを確保します。
■公園エントランス、南ゲート前広場からの遠景
既存の集会堂の佇まいに十分配慮する形で、アプローチ空間として新たに増築する建物は既存建物の高さよりも低く計画します。また公園エントランスや南ゲート前広場から集会堂にいたるまでのアプローチ体験を重要なものと考え、一部屋根付きスロープを含んだ斜路、階段等を新たに計画します。
■建物と前庭の関係
品格があり、かつ良好な既存の庭園環境を尊重する形で、建物と前庭における既存の高低差を活かした計画とします。また、既存の水庭上部に新たな床を設けることで、前庭の開放的な眺望を確保したテラス空間を作ります。
■吹き抜けと大きな開口部を持つ開放的な文化エリア
文化エリアの2階床および壁を除去して吹き抜け空間を作り、1-2階ともに開放的な空間を作ることを計画します。また、1階の多目的スペースの西側の壁には大きな開口部を設けることで、開放感と空間的な広がりを作りだし、また隣接する外部にはテラス空間を設えて、内外を一体的に利用できる計画とします。









