東京都世田谷区の新築住宅   「桜丘の家」

作品紹介

 東京都世田谷区の新築住宅   「桜丘の家」

 東京都世田谷区の新築住宅   「桜丘の家」
  •  東京都世田谷区の新築住宅   「桜丘の家」
  •  東京都世田谷区の新築住宅   「桜丘の家」
  •  東京都世田谷区の新築住宅   「桜丘の家」
  •  東京都世田谷区の新築住宅   「桜丘の家」
  •  東京都世田谷区の新築住宅   「桜丘の家」
  •  東京都世田谷区の新築住宅   「桜丘の家」

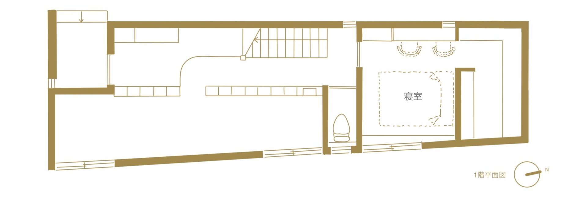
都内の旗竿で裏面に大学の農地が広がる南北に細長い敷地です。

1階に個室、2階にLDK+水回り、ロフトの構成。2階は車線を避けて天井高さを上げ、開放感を出しています。

南側の開口幅はあまり確保できない敷地なので、農地が広がる東側に連窓、北側にハイサイドを取り、2階の日照を確保しています。

階段から1階に光が落ち、図書館のようなたくさんの本棚をほんのり照らします。

壁は少しグレーを取り入れる彩度を落とした漆喰をセルフで塗り、キッチンのアクセントとなるタイル貼り、たくさんの造作家具や、外壁のの板塗装も家族のセルフビルドです。

お客さんの趣味の読書や映画鑑賞を1階や畳コーナー・ロフトなどをいろいろな場所で楽しめる家となりました。

 

名 称 桜丘の家
所在地 東京都世田谷区桜丘
竣 工 2018年1月
設 計 ますいいリビングカンパニー町田分室
施 工 ますいいリビングカンパニー町田分室
構 造 木造在来2階建て
開口部 アルミサッシ
壁・天井 漆喰・タイル、漆喰・ラワン合板
杉無垢フローリング