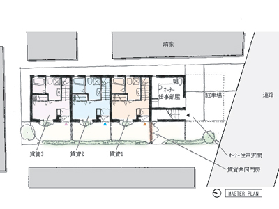
東京都調布市に建てた賃貸住宅付住宅です。コンクリート3階建ての1階と2階部分を利用して、3戸のメゾネット型アパートが併設されています。アパートへの入り口にはアイアン作家の中沢さんによる門が設置され、庭は造園家の荒川さんにお願いしました。
住居は主に2階と3階に配置され、3階には敷地の南北を貫く大きなリビングがあります。ここには自由に間仕切り家具がしつらえられ、子供部屋として利用されます。中心部には屋上につながる吹き抜けを設け、リビングに光を取り込みました。
どこな懐かしさを感じるような、コンクリートの建物。それがこの建物を造るときのスタートでした。街から消えていく懐かしさ、その感情を作り出す要素は建築の形態、素材、そして庭や門などの付属物、それらが一体となり醸し出される「何か」です。「人の暮らしの豊かさのために」つくるという、建築の原点を追及した作品です。







